10平方醫藥冷庫多少錢?
10平方醫藥冷庫多少錢?10平方醫藥冷庫多用于醫院、制藥廠、大藥房、藥品物流中心。是近年來建造較多的一種醫藥冷庫,下面提供10平方醫藥冷庫報價單。
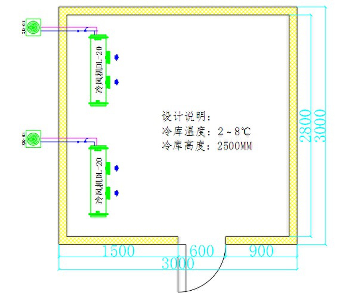
10平方醫藥冷庫配置:100MM雙面彩鋼聚氨酯冷庫保溫板、美國艾默生谷輪渦旋冷庫壓縮機組、DL系列冷風機、微電腦自動控制。


- 相關文章:
安裝一個1500立方的冷庫要多少錢? (2015-4-21 17:38:45)
500平方米的醫藥冷凍庫造價大概是多少呢? (2015-3-11 22:32:23)
建造150立方冷凍庫要多少錢? (2015-3-9 17:31:41)
21平方食堂冷庫全套價格 (2014-12-28 22:4:18)
建造420平方冷凍庫要投資多少錢 (2014-12-28 16:54:32)
20立方醫藥冷庫全套報價 (2014-5-25 21:34:20)
15平方-10度冷庫要多少錢? (2014-4-7 17:0:38)
建造212平方茶葉冷庫要多少錢? (2014-3-31 20:12:31)
9平方醫藥冷庫要多少錢? (2014-3-11 21:32:57)
2套21平方醫藥冷庫要多少錢? (2014-2-26 21:32:24)
60平方15度恒溫倉庫多少錢? (2013-12-23 13:58:7)
2000平方保鮮冷庫造價 (2013-12-9 20:48:1)
六安20平方移機改造要多少錢 (2013-11-22 23:36:7)
65立方醫藥冷庫全套報價 (2013-11-21 16:43:56)
40平方保鮮冷庫報價單—谷輪渦旋 (2013-11-15 12:20:55)
450立方保鮮冷庫報價—谷輪渦旋 (2013-11-13 22:35:46)
9平方冷凍庫要多少錢?—谷輪半封閉 (2013-11-10 21:32:14)
77平方醫藥冷庫要多少錢?—谷輪渦旋 (2013-11-9 16:40:51)
10噸保鮮冷庫多少錢? (2013-11-3 23:20:32)
120平方氣調冷庫多少錢? (2013-11-3 19:4:33)
- 留言列表:
